Проект предоставлен партнером:
SIBDEREVO /
sibderevo.com/
Характеристики
-
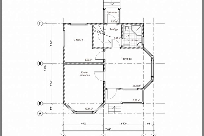
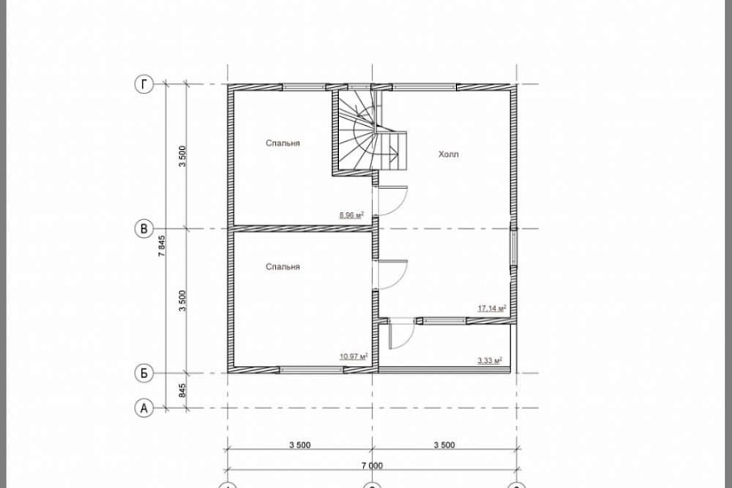
Тип строенияЖилой дом
-
МатериалБрус
-
Тип фундаментаНа винтовых сваях
-
Площадь89
-
Этажность1,5
-
Габариты7845х7845
-
БалконДа
-
Второй светНет
-
ГаражНет
-
МансардаНет
-
Сауна/БассейнНет
-
ТеррасаНет
-
Цокольный этажНет


