Проект предоставлен партнером:
SIBDEREVO /
sibderevo.com/
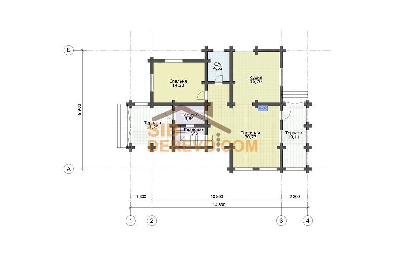
Характеристики
-
Тип строенияЖилой дом
-
МатериалОцилиндрованное бревно
-
Тип фундаментаНа винтовых сваях
-
Площадь159
-
Этажность2
-
Габариты9900х14800
-
БалконНет
-
Второй светДа
-
ГаражНет
-
МансардаНет
-
Сауна/БассейнНет
-
ТеррасаДа
-
Цокольный этажНет







