Проект предоставлен партнером:
ООО «Крона Групп» /
kadrin.ru/kontaktyi
Характеристики
-
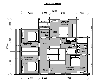
Тип строенияЖилой дом
-
МатериалКлееный брус
-
Тип фундаментаНа винтовых сваях
-
Площадь222
-
Этажность2
-
Габариты15900х12960
-
БалконДа
-
Второй светНет
-
ГаражНет
-
МансардаНет
-
Сауна/БассейнНет
-
ТеррасаДа
-
Цокольный этажНет












