Проект предоставлен партнером:
/
gsk-krepost.ru
Характеристики
-
Тип строенияЖилой дом
-
МатериалДеревянный каркас
-
Тип фундаментаНа винтовых сваях
-
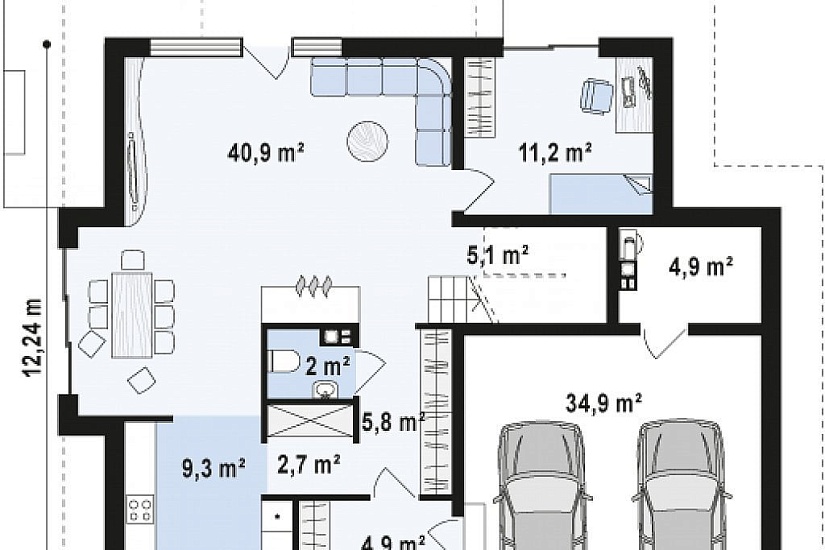
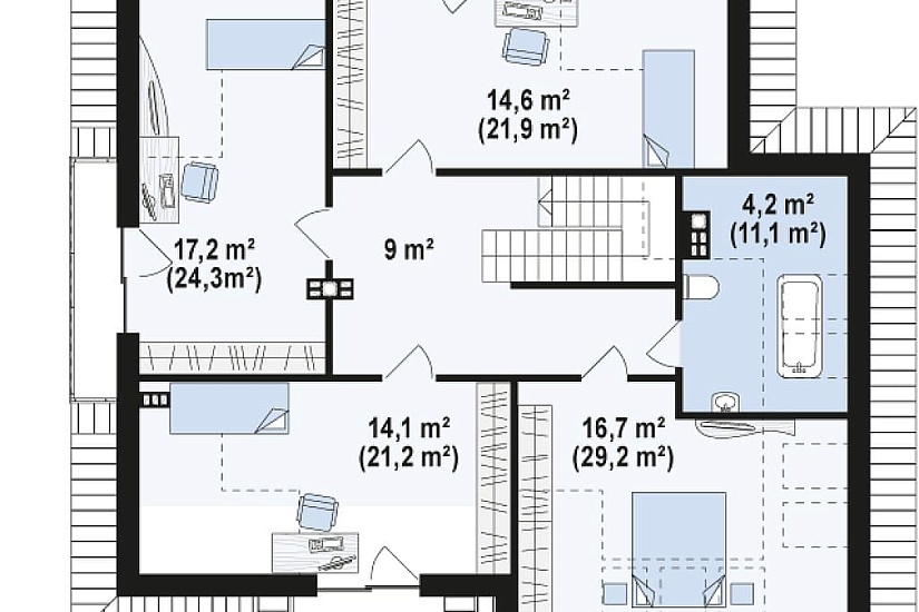
Площадь238
-
Этажность2
-
Габариты12200х14000
-
БалконДа
-
Второй светНет
-
ГаражДа
-
МансардаНет
-
Сауна/БассейнНет
-
ТеррасаДа
-
Цокольный этажНет






