Проект предоставлен партнером:
/
gsk-krepost.ru
Характеристики
-
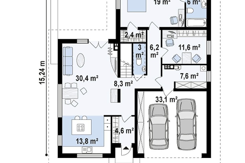
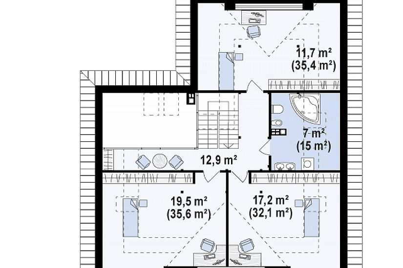
Тип строенияЖилой дом
-
МатериалДеревянный каркас
-
Тип фундаментаНа винтовых сваях
-
Площадь274
-
Этажность1
-
Габариты15240 х 13440
-
БалконНет
-
Второй светНет
-
ГаражДа
-
МансардаДа
-
Сауна/БассейнНет
-
ТеррасаДа
-
Цокольный этажНет





