Проект предоставлен партнером:
/
gsk-krepost.ru
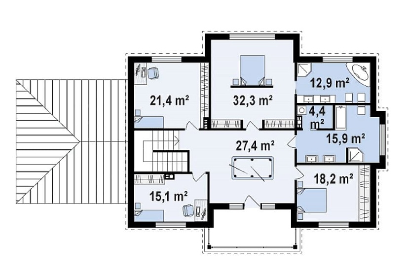
Характеристики
-
Тип строенияЖилой дом
-
МатериалДеревянный каркас
-
Тип фундаментаНа винтовых сваях
-
Площадь354
-
Этажность2
-
Габариты12860 х 24260
-
БалконДа
-
Второй светДа
-
ГаражДа
-
МансардаНет
-
Сауна/БассейнНет
-
ТеррасаНет
-
Цокольный этажНет








