Проект предоставлен партнером:
/
constructivnn.ru/
Характеристики
-
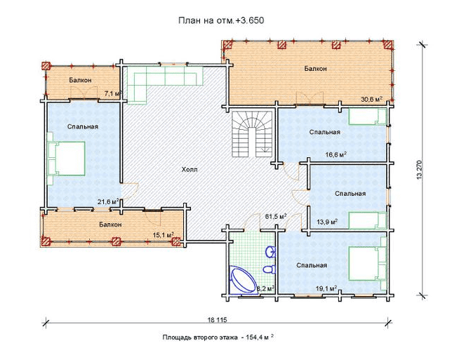
Тип строенияЖилой дом
-
МатериалПроф. брус
-
Тип фундаментаНа винтовых сваях
-
Площадь309
-
Этажность2
-
Габариты18115*12195
-
БалконДа
-
Второй светНет
-
ГаражДа
-
МансардаНет
-
Сауна/БассейнНет
-
ТеррасаДа
-
Цокольный этажНет




