Проект предоставлен партнером:
/
lh.vu/
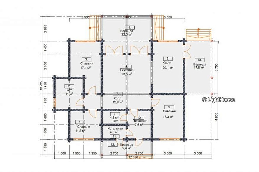
Характеристики
-
Тип строенияЖилой дом
-
МатериалКлееный брус
-
Тип фундаментаНа винтовых сваях
-
Площадь384
-
Этажность1
-
Габариты17000*15070
-
БалконНет
-
Второй светНет
-
ГаражНет
-
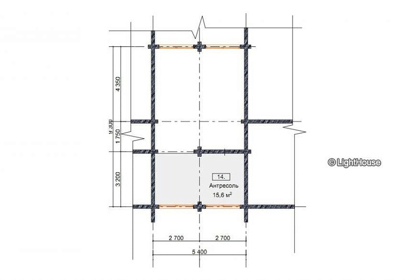
МансардаДа
-
Сауна/БассейнНет
-
ТеррасаНет
-
Цокольный этажНет









