Проект предоставлен партнером:
/
lh.vu/
Характеристики
-
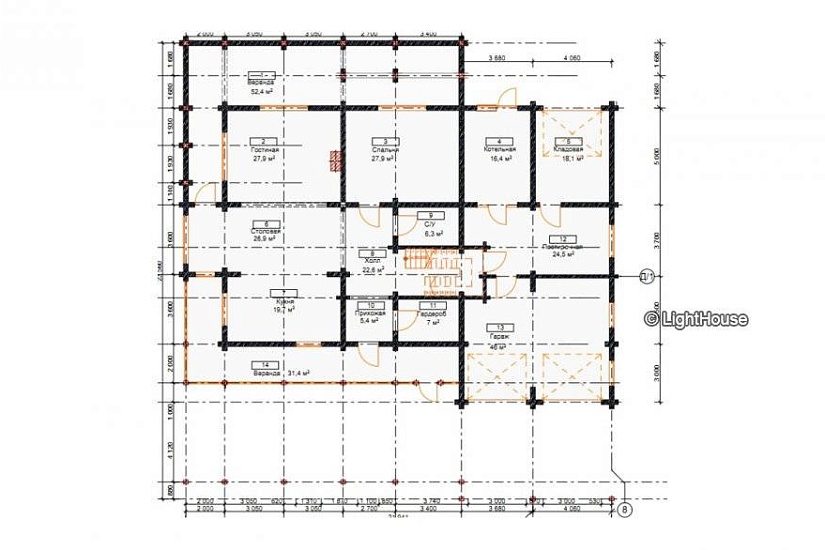
Тип строенияЖилой дом
-
МатериалКлееный брус
-
Тип фундаментаНа винтовых сваях
-
Площадь500
-
Этажность1
-
Габариты21941х22810
-
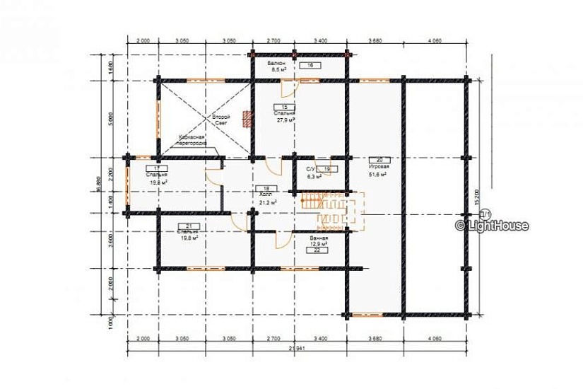
БалконДа
-
Второй светДа
-
ГаражДа
-
МансардаДа
-
Сауна/БассейнНет
-
ТеррасаНет
-
Цокольный этажНет










