Проект предоставлен партнером:
/
www.sks52.ru/
Характеристики
-
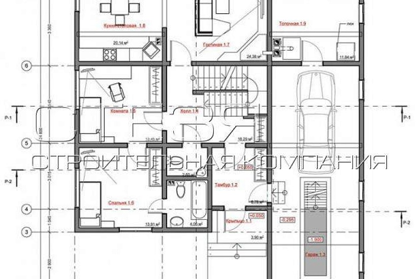
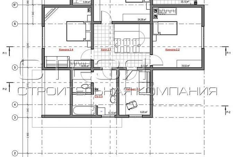
Тип строенияЖилой дом
-
МатериалГазосиликат
-
Тип фундаментаНа винтовых сваях
-
Площадь320
-
Этажность1
-
Габариты13200*24800
-
БалконДа
-
Второй светНет
-
ГаражДа
-
МансардаДа
-
Сауна/БассейнНет
-
ТеррасаДа
-
Цокольный этажНет








