Проект предоставлен партнером:
ООО «100кубов» /
www.100kub.ru
Характеристики
-
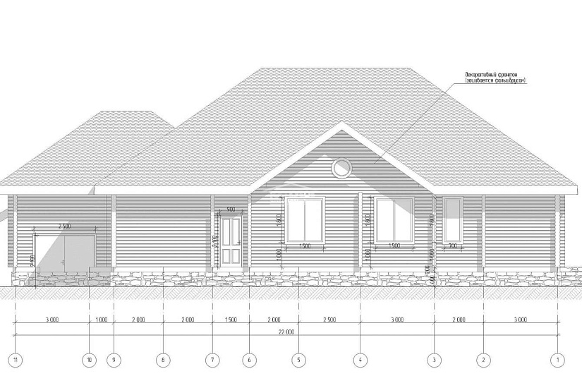
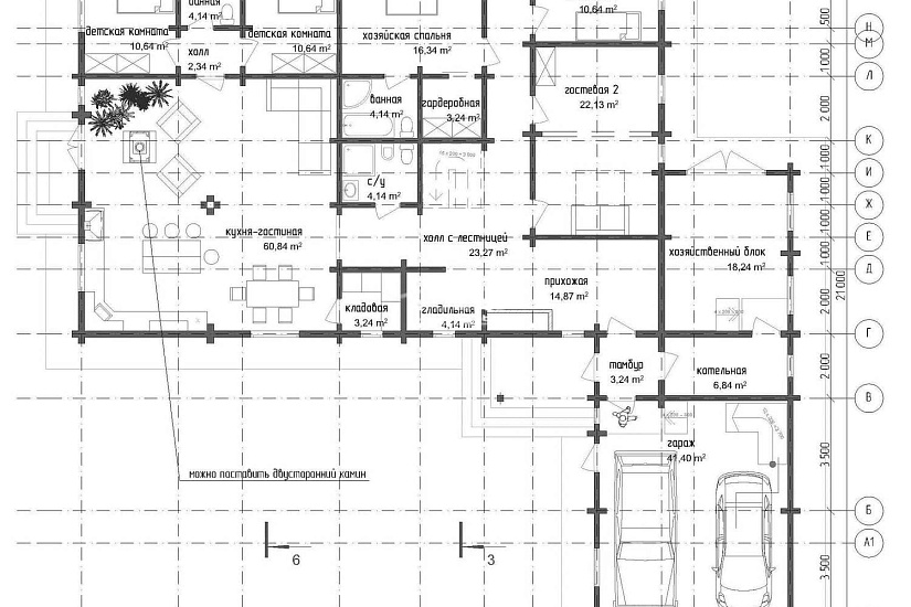
Тип строенияЖилой дом
-
МатериалПроф. брус
-
Тип фундаментаНа винтовых сваях
-
Площадь285
-
Этажность2
-
Габариты22000*21000
-
БалконНет
-
Второй светНет
-
ГаражДа
-
МансардаНет
-
Сауна/БассейнНет
-
ТеррасаНет
-
Цокольный этажНет







