Проект предоставлен партнером:
ООО «100кубов» /
www.100kub.ru
Характеристики
-
Тип строенияЖилой дом
-
МатериалПроф. брус
-
Тип фундаментаНа винтовых сваях
-
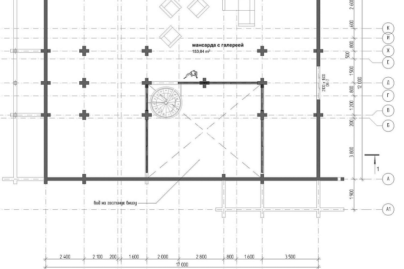
Площадь326
-
Этажность2
-
Габариты17000*12000
-
БалконНет
-
Второй светНет
-
ГаражДа
-
МансардаДа
-
Сауна/БассейнДа
-
ТеррасаНет
-
Цокольный этажДа







