Проект предоставлен партнером:
ООО «100кубов» /
www.100kub.ru
Характеристики
-
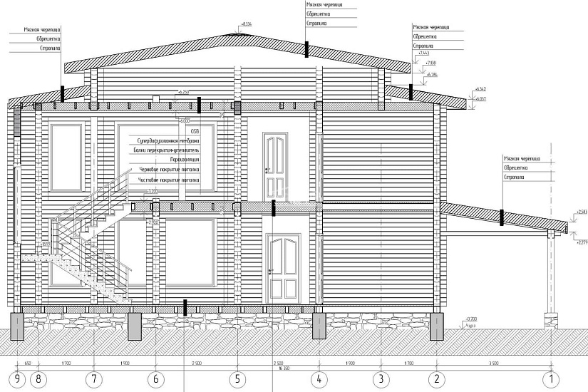
Тип строенияЖилой дом
-
МатериалПроф. брус
-
Тип фундаментаНа винтовых сваях
-
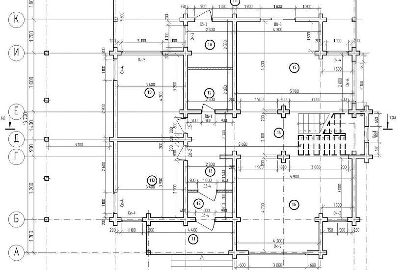
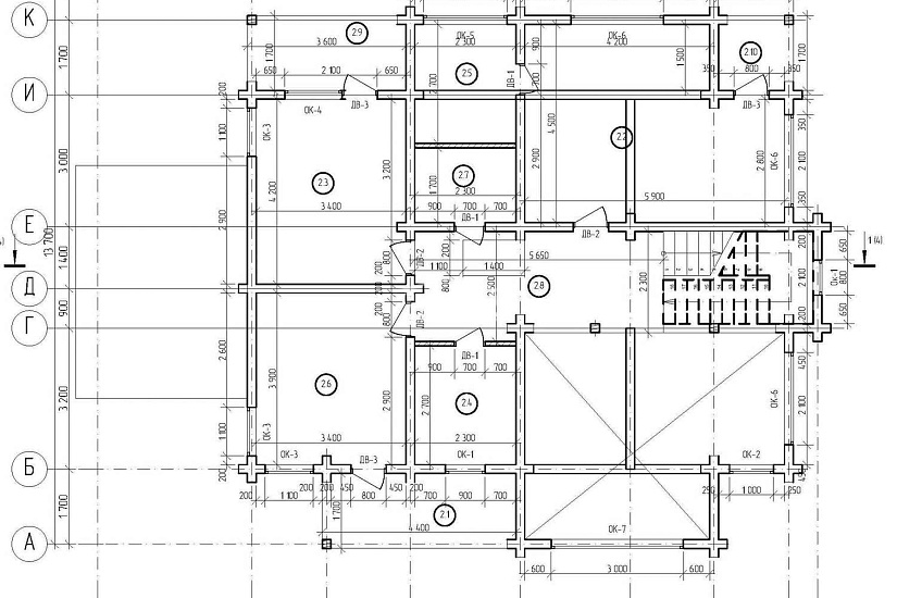
Площадь250
-
Этажность2
-
Габариты16350*13700
-
БалконНет
-
Второй светДа
-
ГаражНет
-
МансардаНет
-
Сауна/БассейнНет
-
ТеррасаДа
-
Цокольный этажНет










