Проект предоставлен партнером:
ООО «100кубов» /
www.100kub.ru
Характеристики
-
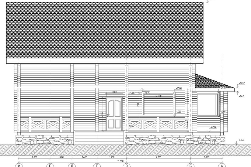
Тип строенияЖилой дом
-
МатериалПроф. брус
-
Тип фундаментаНа винтовых сваях
-
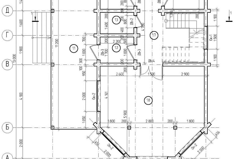
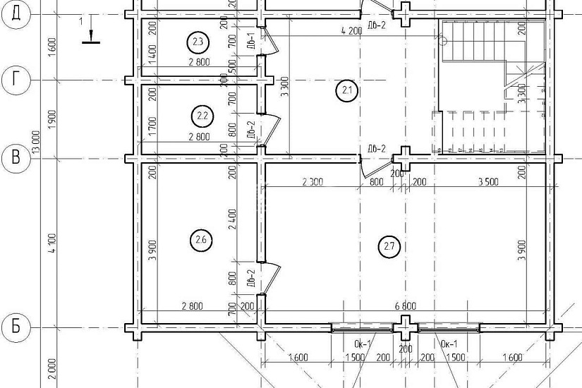
Площадь202
-
Этажность2
-
Габариты10000*13000
-
БалконНет
-
Второй светНет
-
ГаражНет
-
МансардаНет
-
Сауна/БассейнНет
-
ТеррасаДа
-
Цокольный этажНет










