Проект предоставлен партнером:
ГК «ЭкоПан - Новосибирск» /
www.ecopan.nsk.ru/
Характеристики
-
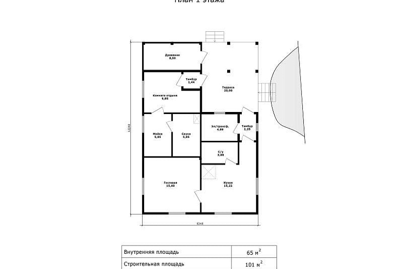
Тип строенияБаня
-
МатериалДеревянный каркас
-
Тип фундаментаНа винтовых сваях
-
Площадь101
-
Этажность1
-
Габариты8348*12343
-
БалконНет
-
Второй светНет
-
ГаражНет
-
МансардаНет
-
Сауна/БассейнДа
-
ТеррасаДа
-
Цокольный этажНет





