Проект предоставлен партнером:
ГК «ЭкоПан - Новосибирск» /
www.ecopan.nsk.ru/
Характеристики
-
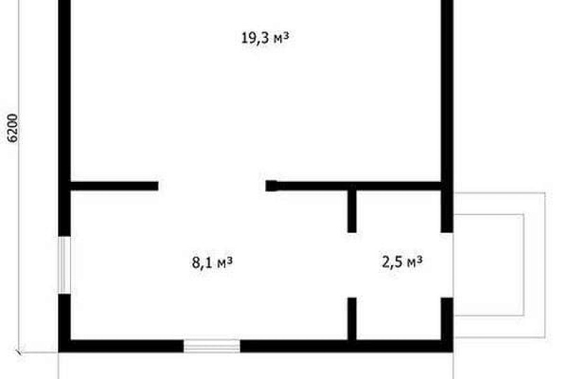
Тип строенияОбщественное здание
-
МатериалSIP-панель
-
Тип фундаментаНа винтовых сваях
-
Площадь30
-
Этажность1
-
Габариты0.0
-
БалконНет
-
Второй светНет
-
ГаражНет
-
МансардаНет
-
Сауна/БассейнНет
-
ТеррасаНет
-
Цокольный этажНет





