Проект предоставлен партнером:
ДомДома /
domdoma.ru/
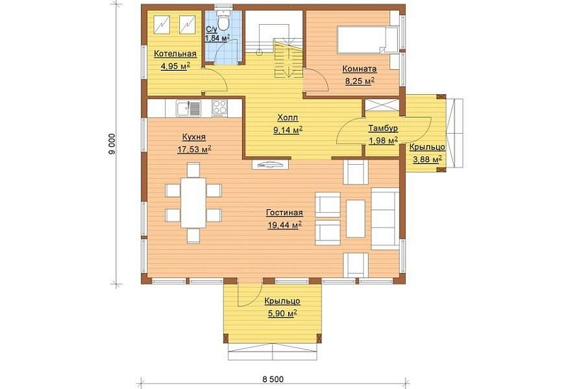
Характеристики
-
Тип строенияЖилой дом
-
МатериалSIP-панель
-
Тип фундаментаНа винтовых сваях
-
Площадь153
-
Этажность2
-
Габариты10470*10000
-
БалконДа
-
Второй светНет
-
ГаражНет
-
МансардаНет
-
Сауна/БассейнНет
-
ТеррасаНет
-
Цокольный этажНет






