Характеристики
-
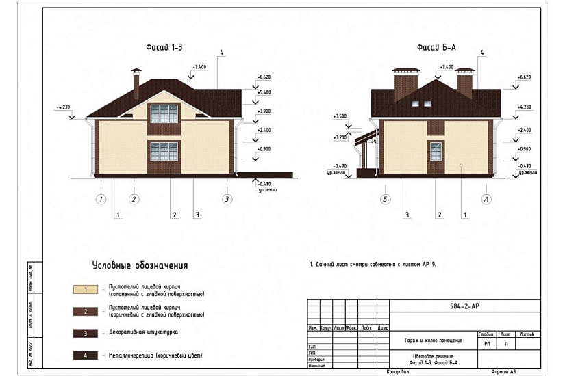
Тип строенияГараж
-
МатериалГазосиликат
-
Тип фундаментаНа винтовых сваях
-
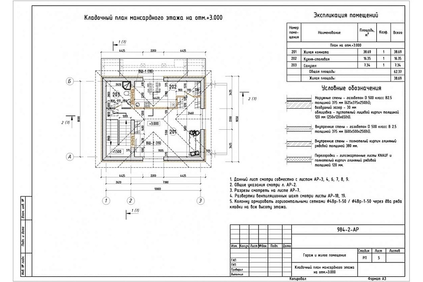
Площадь200
-
Этажность1
-
Габариты10000*9050
-
БалконНет
-
Второй светНет
-
ГаражДа
-
МансардаДа
-
Сауна/БассейнНет
-
ТеррасаНет
-
Цокольный этажДа




