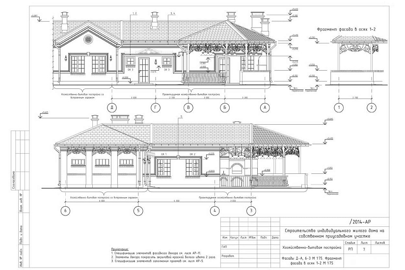
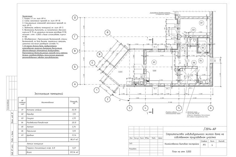
Характеристики
-
Тип строенияБаня
-
МатериалКирпич
-
Тип фундаментаНа винтовых сваях
-
Площадь107
-
Этажность1
-
Габариты15300*12600
-
БалконНет
-
Второй светНет
-
ГаражНет
-
МансардаНет
-
Сауна/БассейнНет
-
ТеррасаДа
-
Цокольный этажНет







