Характеристики
-
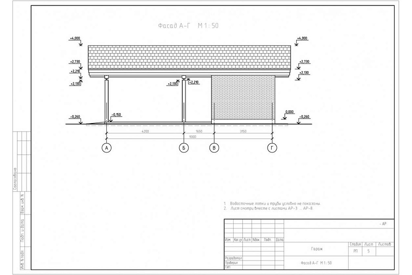
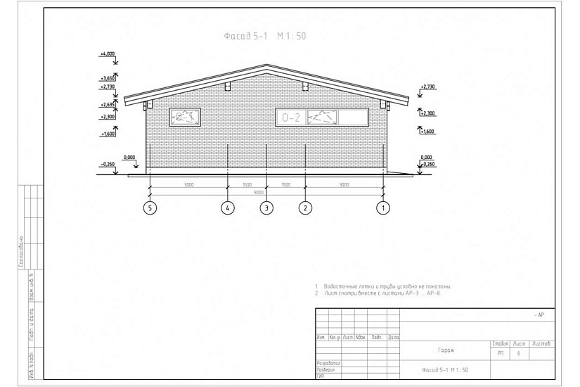
Тип строенияГараж
-
МатериалКирпич
-
Тип фундаментаНа винтовых сваях
-
Площадь81
-
Этажность1
-
Габариты9000*9000
-
БалконНет
-
Второй светНет
-
ГаражДа
-
МансардаНет
-
Сауна/БассейнНет
-
ТеррасаНет
-
Цокольный этажНет





