Характеристики
-
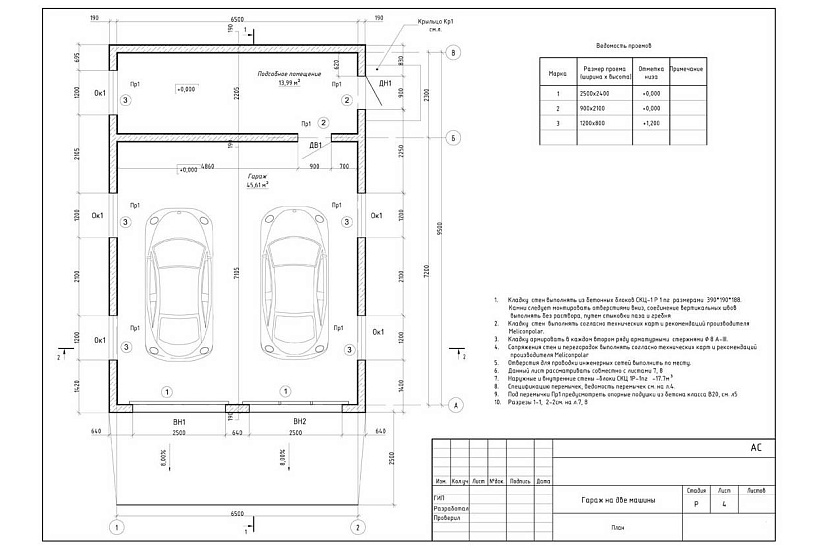
Тип строенияГараж
-
МатериалКерамзитобетон
-
Тип фундаментаНа винтовых сваях
-
Площадь61
-
Этажность1
-
Габариты6500*9500
-
БалконНет
-
Второй светНет
-
ГаражДа
-
МансардаНет
-
Сауна/БассейнНет
-
ТеррасаНет
-
Цокольный этажНет



