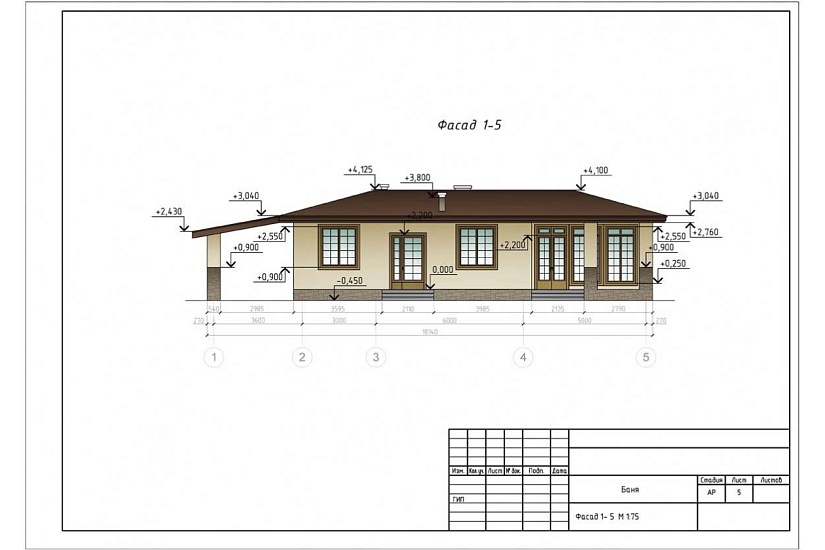
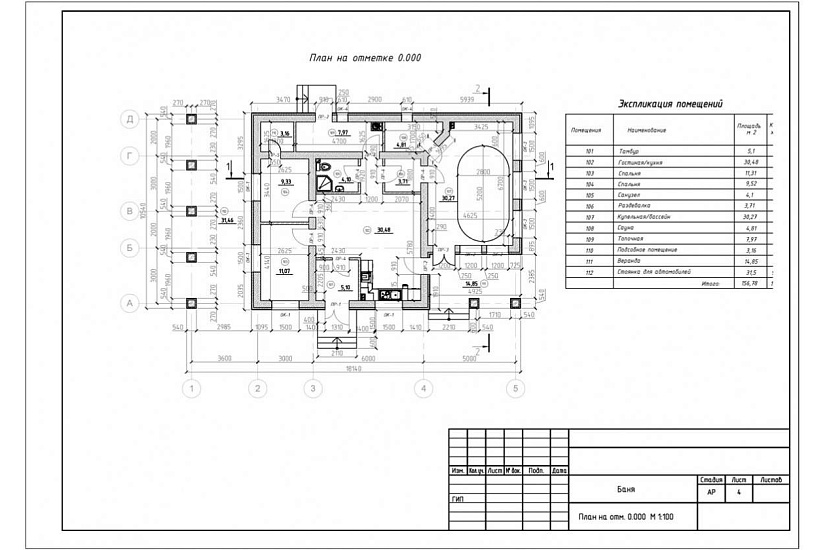
Характеристики
-
Тип строенияБаня
-
МатериалГазосиликат
-
Тип фундаментаНа винтовых сваях
-
Площадь156
-
Этажность1
-
Габариты18140*10540
-
БалконНет
-
Второй светНет
-
ГаражНет
-
МансардаНет
-
Сауна/БассейнДа
-
ТеррасаНет
-
Цокольный этажНет











