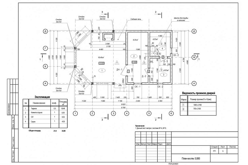
Характеристики
-
Тип строенияБаня
-
МатериалДеревянный каркас
-
Тип фундаментаНа винтовых сваях
-
Площадь42
-
Этажность1
-
Габариты8780*4860
-
БалконНет
-
Второй светНет
-
ГаражНет
-
МансардаНет
-
Сауна/БассейнДа
-
ТеррасаДа
-
Цокольный этажНет





