Характеристики
-
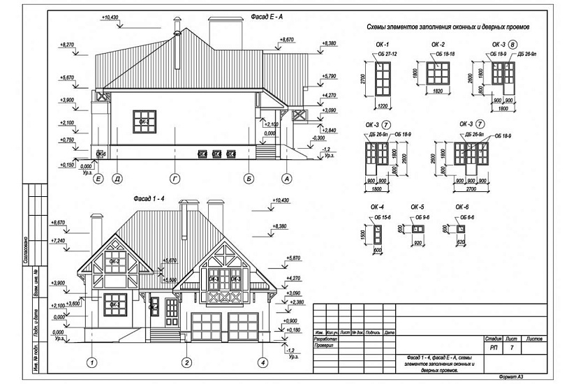
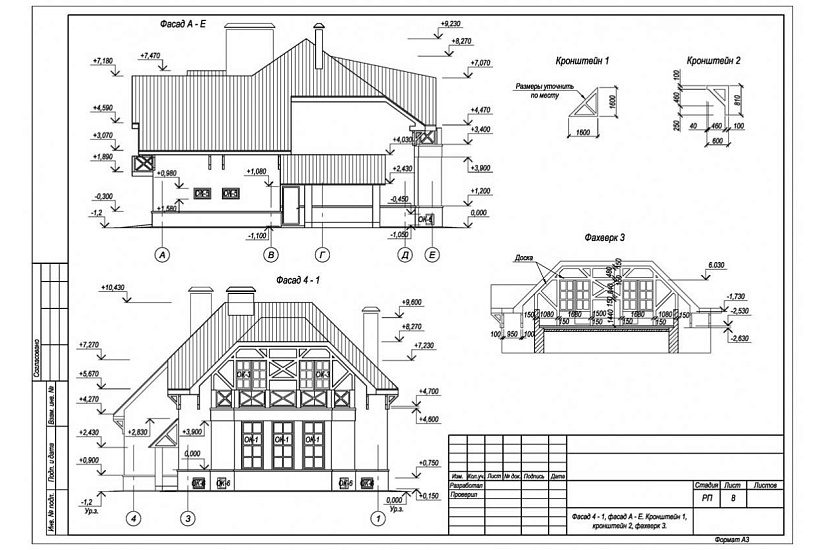
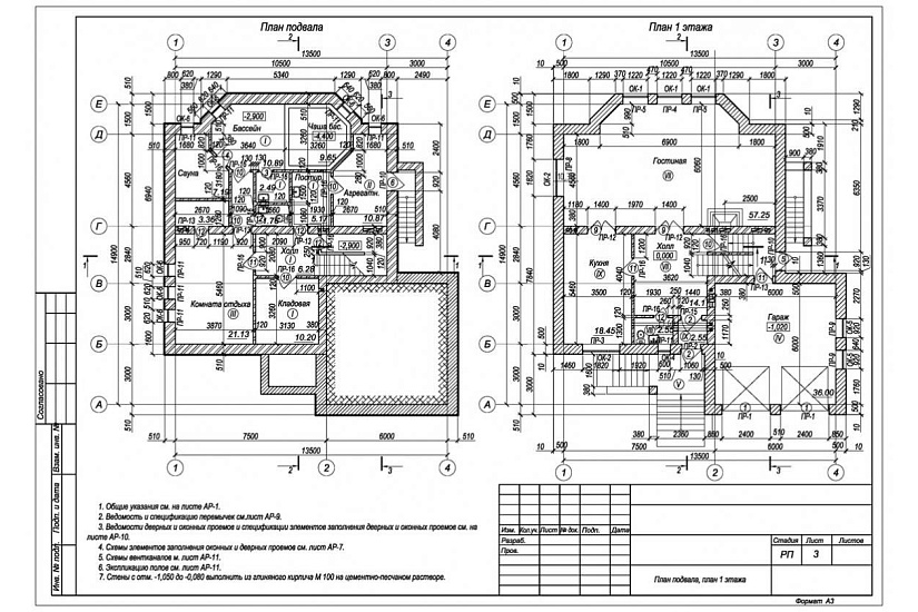
Тип строенияЖилой дом
-
МатериалГазосиликат
-
Тип фундаментаНа винтовых сваях
-
Площадь502
-
Этажность2
-
Габариты13500*14900
-
БалконНет
-
Второй светНет
-
ГаражДа
-
МансардаДа
-
Сауна/БассейнДа
-
ТеррасаНет
-
Цокольный этажДа







