Характеристики
-
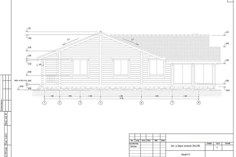
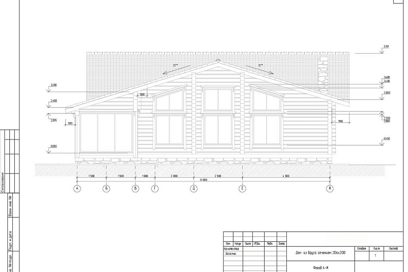
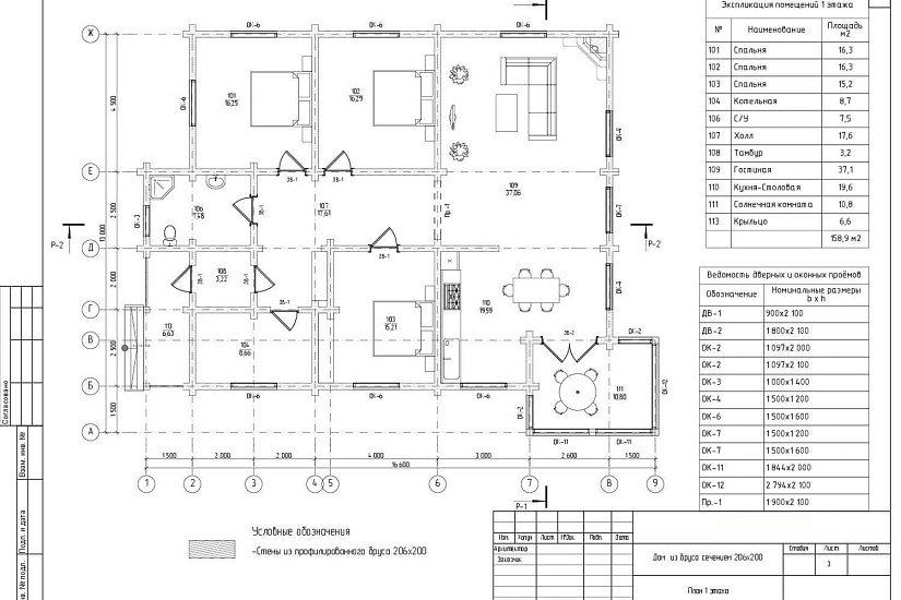
Тип строенияЖилой дом
-
МатериалМеталлокаркас
-
Тип фундаментаНа винтовых сваях
-
Площадь158
-
Этажность1
-
Габариты16600x13000
-
БалконНет
-
Второй светНет
-
ГаражНет
-
МансардаНет
-
Сауна/БассейнНет
-
ТеррасаНет
-
Цокольный этажНет





